Cabinet Drawings
- Published on
 

Working more on the cabinet layouts and we have some decisions to make. We have had a few cabinet meetings now. One with a local company that sells “stock” cabinets. Meaning they order essentially pre-fabricated cabinets that are ready to be installed by a trim carpenter when the time comes. Another option we are looking at is a custom cabinet maker. This option excites us because you can truly do almost anything you want with the cabinets. With stock cabinets, you are limited on sizes and options. Stock cabinets have common sizes they come in, and sometimes if you want a special option you might not find that.
We need cabinets in our kitchen, pantry, laundry room, and all bathrooms. We eventually want to create some sort of drop-zone area in our garage entryway, but we’re going to save that for a later project after move-in. We also want to create some sort of bar area in the simulator room, but we want to work around the actual simulator so we’re going to wait on the bar as well until after move-in. We love that we are building custom and can get whatever we want done, but we do want to save some things for down the road! We love a DIY project around here 🙂.
When meeting with a cabinet designer you go over many things. We started by going through our floor plan and pointing out where we would need cabinets. We discussed finishes we want (cabinet style, paint, stain, etc.), and we were able to pick out some sample doors to decide on colors. We then dove into any features we want in the cabinets such as a pull-out trash cabinet, sheet pan and cutting board storage, or whether you prefer drawers or doors. A couple things we want are a pull-out utensil organizer, sheet pan storage, drawers under the range top, trash cabinet in kitchen and pantry, and more drawer cabinets than door cabinets. We were also hoping to do a “hidden pantry.” You may have seen this trend online. Where the pantry doors look like your cabinetry, but your pantry is behind there! We want these doors to be able to swing inward and also have glass panels in them. Like this beautiful kitchen from LHK Interiors:
https://www.instagram.com/p/CqilVSYpCz9/?img_index=1
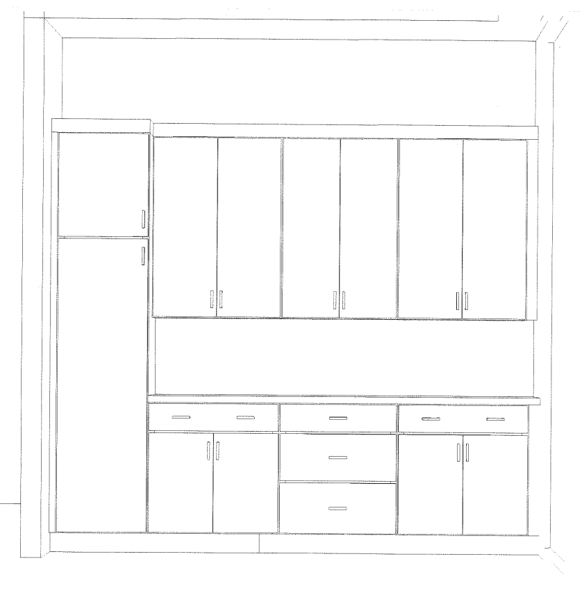
After the meeting about the stock cabinets, these are the layouts we were given. We are excited about all the layouts, so I think we’ll be happy to go this route if needed. We are treating this as our backup option because the custom cabinets will have a better quality and have the ability to get the type of “hidden pantry” doors we want. With these cabinets they could do a hidden pantry, but not with glass doors and only able to swing outward. So we decided we’d rather not do the hidden pantry than not have it look how we want. The kicker will just be pricing. Figuring out what will work in our budget will be the biggest decision maker when choosing a cabinet company.











The kitchen and pantry here are pretty similar to what we shared already in Lexi’s renderings. We had the designer base the layouts on Lexi’s mock-ups. Then in the primary bathroom we are doing individual vanities, and in the primary closet we’ll put in a makeup vanity for Lexi. Then, the two extra bathrooms will have a vanity cabinet with a linen cabinet. The sim room bathroom will just have a vanity cabinet. In the laundry room, we did a broom cabinet with uppers and lowers along one wall. Then on the other wall we put in a sink cabinet and enclosures for our washer/dryer with some cubbies underneath for sliding laundry baskets into.
The meeting with the custom shop was pretty much the same. Go over the plan to see where you need cabinets, talk about any special features, and discuss finishes you are looking for. Here is the kitchen layout we received from them.

The bathrooms and laundry room layouts will all be the same. This kitchen more so reflects what we were dreaming of. Now we have to go through all the details and see what works in our budget before we can make a decision on who to go with. Once we make a decision, we will have another meeting with that company to finalize our decisions so the cabinets can be fabricated and ready when we will need them.
Still more shopping to be done. See you next time 🙂
 
